Дом из сип панелей в современном стиле 190226-1

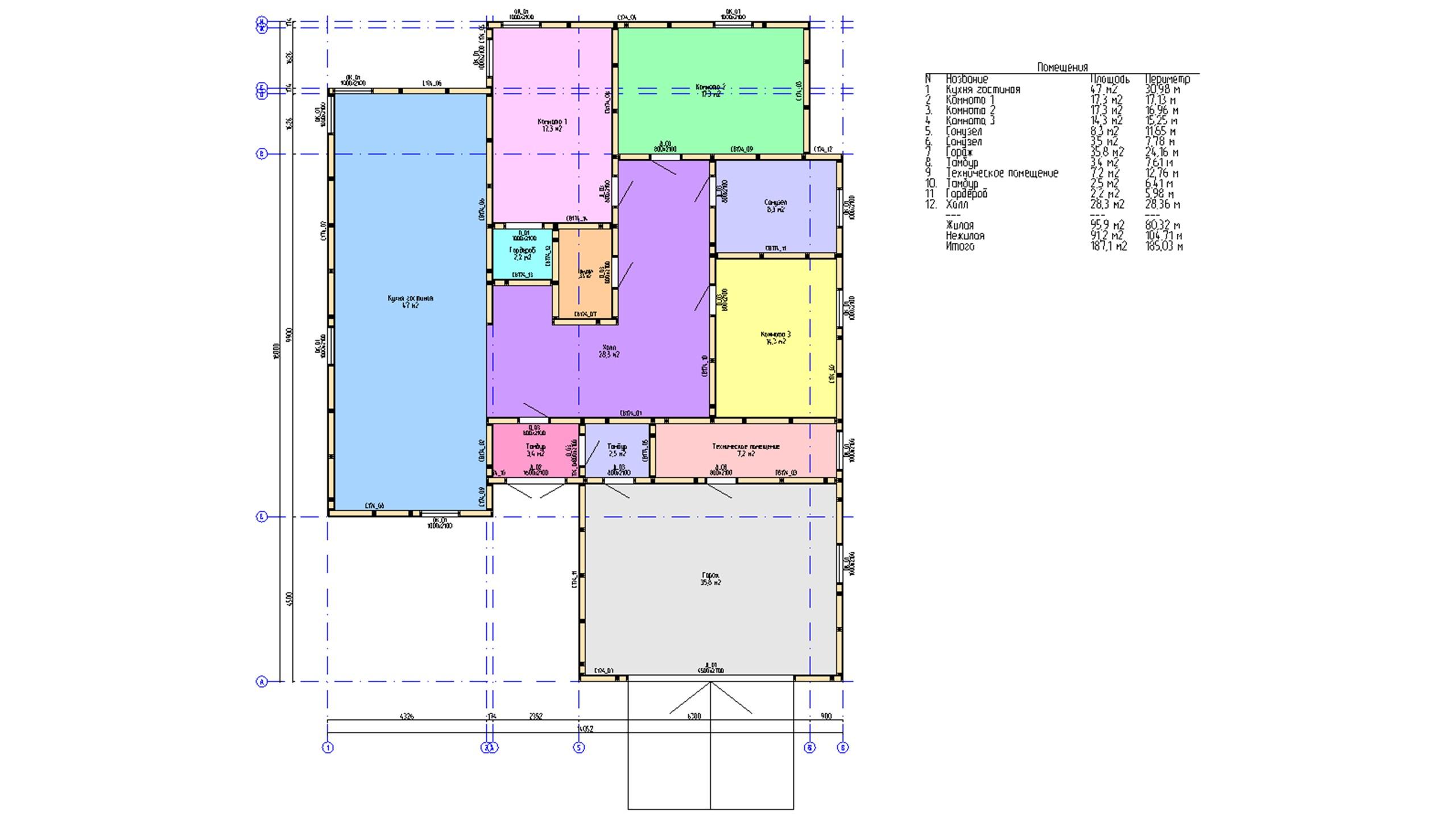
Дом из сип панелей в современном стиле, на ленточном фундаменте, 3 комнаты, кухня гостиная, 2 санузла, гараж

  • Артикул
    190226-1
  • Количество этажей
    1
  • Количество комнат
    3
  • Площадь дома
    190
  • Количество санузлов
    2
  • Наличие террасы
    0
  • Наличие техпомещения
    1
  • Ориентировочная цена дома
    3e+06
Новая цена 15000
Старая цена 37000
Купить
Дом из сип панелей в современном стиле площадью 190 кв.м
Строительство домов из СИП панелей: современное решение для комфортной жизни

Современные технологии строительства предлагают все больше эффективных и экономичных решений. Одним из таких вариантов является строительство домов из СИП панелей. Эта технология сочетает в себе скорость возведения, высокие показатели энергоэффективности и доступность, что делает её привлекательной для широкого круга потребителей.

СИП панели (Structural Insulated Panels) представляют собой трехслойную конструкцию, состоящую из двух листов ориентированно-стружечной плиты (ОСП) и слоя утеплителя между ними. Такая конструкция обеспечивает высокую прочность, отличные теплоизоляционные свойства и звукоизоляцию. Благодаря этому, дома из СИП панелей быстро нагреваются и долго сохраняют тепло зимой, а летом в них прохладно.

Преимущества строительства домов из СИП панелей очевидны. Во-первых, это высокая скорость строительства. Монтаж дома может быть завершен в несколько недель, что значительно быстрее, чем при использовании традиционных методов. Во-вторых, дома из СИП панелей отличаются высокой энергоэффективностью, что позволяет существенно снизить затраты на отопление и кондиционирование. В-третьих, СИП панели легкие и прочные, что упрощает транспортировку и монтаж, а также позволяет строить дома на участках с не самым устойчивым грунтом.

Если вы планируете построить Дом из сип панелей в современном стиле площадью 190 кв.м самый оптимальный вариант использования СИП панелей. Это современное, экономичное и эффективное решение, которое позволит вам быстро и качественно построить комфортное жилье.
Заказать звонок
Введите данные ниже, а остальное оставьте нам!
Выберите вариант
Оставляя заявку, вы соглашаетесь на обработку персональных данных
Заявка оформлена
Наш менеджер позвонит вам уточнить детали.
Хорошего дня!
Ваш заказ
  • image alt
    POWER Full 14
    POWER Full 14
    1000
  • image alt
    POWER Full 14
    POWER Full 14
    2000
3000
Выберите вариант доставки
Выберите способ оплаты
Оставляя заявку, вы соглашаетесь на обработку персональных данных
2